FŐOLDAL
MAGUNKRÓL
TERMÉKEK
INFORMÁCIÓ
GALÉRIA
KAPCSOLAT
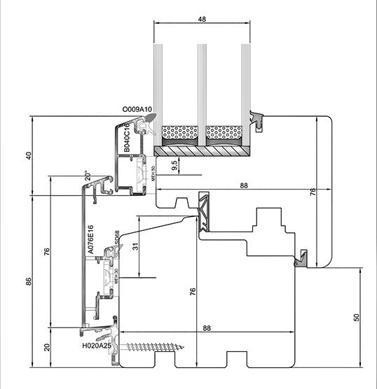
Alu - Fa megoldások
Ablakok ,Terasz és Toló ajtók
Bejárati ajtók
IRODA / ÜZEM : 3700 Kazincbarcika Vámos Ilona u. 1. / info@ecofa.hu / +36 20 / 253 - 6041